Generalitati
Modelul MASELLI BA01 este un analizor pentru bere care este alcatuit dintr-un sistem de analiza montat on line si un panou indicator receptor care se poate monta pe perete sau pe panou.
Sistemul de analiza on line masoara continuu indicele de refractie al produsului, viteza sunetului in produs si temperatura produsului.
Receptorul utilizeaza aceste valori pentru a calcula parametri produsului - bere :
- - continutul de alcool
- - valoare extract real / original
- - gradele Plato
Totodata receptorul afisaza aceste valori pe display-ul cu cristale lichide si monitorizeaza conditiile de alarma.
Parametri masurati pot fi transmisi pe comunicatia seriala catre un sistem superior sau catre sistemul de achizitie si prelucrare hard / soft Maselli Mlab.
Analizorul de bere incorporeaza module bazate pe tehnologia moderna :
- - unitate de calcul bazata pe microprocesor
- - cartela de intrari / iesiri digitale
- - refractometru de mare precizie
- - analizor sonic de mare rezolutie
Receptorul contine un afisaj pe cristale lichide si o tastatura cu care se pot initializa functiile sistemului si alarmele.
Analizorul este usor de instalat pe linia de produs utilizind fitinguri standard sanitare tip Varivent.
Date tehnice
Domenii de masura :
- - Alcool : 0......10 % w/w [ 0.....12 % v/v ]
- - Extract real : 0....30 Ew
- - Extract original : 0.....30 grade Plato
Precizie de masura / repetabilitate :
- - Alcool : + / - 0.02 w/w [+ / - 0.01w/w ]
- - Extract real : + / - 0,05 Ew [ + / - 0,01 Ew ]
- - Extract original : + / - 0,05 grade Plato [ 0,01 grade Plato ]
Domeniul de temperatura pentru compensare automata : - 5 ......+ 35 grade C
Compensarea pentru influenta bioxidului de carbon dizolvat :
- - manuala prin introducerea valori CO2 in g / l
- - automata prin conectarea la un carbometru Maselli UC 05
Interfete :
- - Analogice : 4 canale : 0....20 mA sau 4....20 mA configurabile
- - Digitale : RS 422 pentru conectare la receptor
- - Intrari tip contact : una pentru Stop Linie
- - Iesiri tip contact : opt tip releu pentru alarme
Alimentare :
- - Curent alternativ : 14....24 Vca
- - Curent continuu : 18.....36 Vcc
- - Optional : 230 Vca
Afisaj tip LCD : 240 x 128 pixeli
Senzor de temperatura : Pt 100
Conectare mecanica : fiting Varivent
Materiale de contact cu produsul : otel inox, sticla optica, viton
Temperatura produsului : - 20....+ 120 grade C
Presiune produs : - 1.....+ 10 bari la 20 grade C
Analizorul BA 01 este utilizat pentru masurarea continua, on line, a parametrilor de baza in productia de bere : continutul de alcool, valoarea extractului, gradele Plato.
Parametrii sunt compensati automat cu variatia temperaturii si cu valoarea CO2 dizolvat.
BA 01 se poate conecta intr-o structura ierarhica de monitorizare si control al productiei.
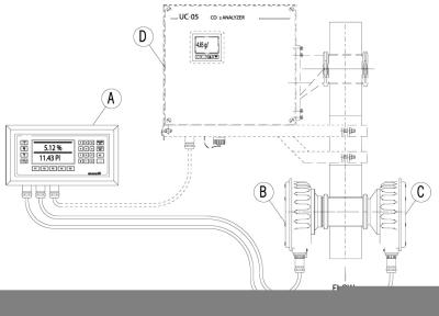
In figura de mai jos este prezentata structura de baza a unui sistem de monitorizare bere cu compensarea valorii parametrilor cu variatia CO2 dizolvat. In structura sunt continute urmatoarele elemente :
- - A = MR 02 - Receptor multiparametric
- - B = UR 24 - Refractometru de proces
- - C = US 01 - Analizor de viteza sonic
- - D = UC 05 - Analizor de CO2








